普通文章
图片集
商品
文章
首页
金牛博客
家居作品
施工服务
了解金牛
餐饮娱乐
酒店会所
活动通告
新闻动态
装修流程
装修课堂
客户评价
这里是增城新塘装饰公司领头羊金牛装饰公司网站栏目内容页
新塘装修公司网站首页
金牛博客
厨室布置有哪些设计说明?
厨室布置有哪些设计说明?
原创
2022-03-08 07:04:27
0
次
厨室布置有哪些设计说明?
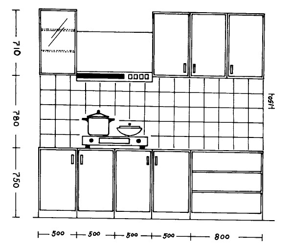
设计说明:厨室是生活必备空间。人的大部分物质生活都与厨室有关,家务活动中1/3工作是在厨室完成的。
厨室面积一般都不大,在有限的空间内要完成烧,烤,炒,烹,炖的配餐过程,还要进行洗、涮、擦的清洁工作。为此,厨室家具要具有紧凑,多用,容量大的特点。
在布置上采用借天法,使家具占天不占地。图例是一个面积2米×3米的小厨室,在室内一侧放置一组配餐工作平台,平台高75厘米、宽45厘米,在平台上部吊挂一组壁柜,柜宽30厘米。高70厘米以上。洗涤槽安置在配餐台右侧,使用时较为方便。
厨室
布置
哪些
设计说明
生活
上一篇:
一般照明与局部照明有哪些关系?
下一篇:
天花板装饰如何美化居室的作用?
栏目索引
金牛博客
家居作品
施工服务
了解金牛
餐饮娱乐
酒店会所
活动通告
新闻动态
装修流程
装修课堂
客户评价
焦点新闻
办公空间
设计团队
在建工程
相关内容
1
还在为小户型的空间容量不够大而发愁吗?
2
夏季装修有哪些事项需要注意
3
别墅装修注意事项有哪些?
4
装修预算表包括哪些?
5
装修时如何布置开关插座 教你如何做到物尽...